Barbara-Uthmann-Ring 55, 09456 Annaberg-Buchholz
Mietkosten
Kaltmiete
339,57 €
Nebenkosten
190,00 €
Gesamtmiete
529,57 €
Genossenschaftsanteile
1240,00 €
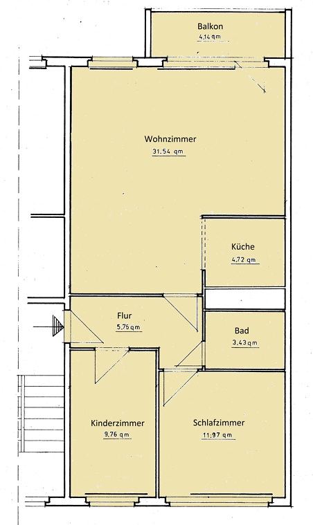
Wohnungsdetails
Wohnräume:
3
Wohngeschoss:
2. Etage
